久留米市善導寺町木塚にて緑の柱を体感できるを構造見学会開催いたします。
駅前工務店では、住まいにとって本当に大切なのは、完成してからは見えなくなる「構造の強さ」だと考えています。
緑の柱は、木材の弱点である「腐朽・シロアリ・薬剤の安全性」を同時に克服した、“長持ちする家づくり”のための画期的な構造材です。
構造見学会では、緑の柱の魅力をたっぷりお伝えいたします
| ◆日程 | 12月6日(土)・7日(日) |
| ◆時間 | 10:00~17:00 |
| ◆場所 | 福岡県久留米市善導寺町木塚字南内畑569-6 |

▼来場時間を選んでご予約ください▼
腐らない「緑の柱」のハウスガードシステム






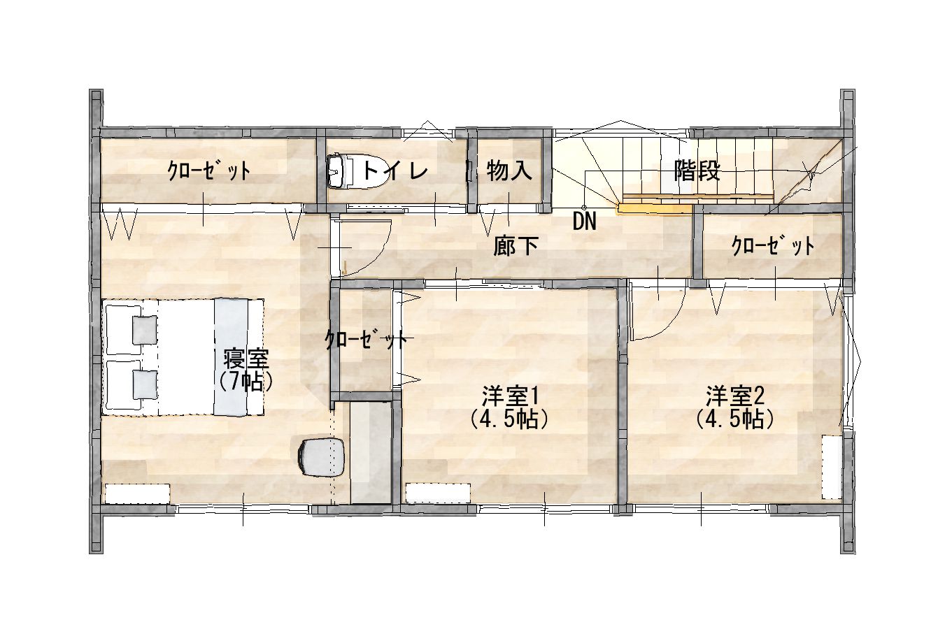
物件のご紹介
~善導寺町木塚 5号棟~



収納豊富な4LDK!
リビング横の和室は、お子さまの遊び場やお昼寝スペース、客間など多目的に活用できます。WICもあるので、おもちゃや布団もしっかり収納できます◎
また、手元を隠してくれるキッチンの腰壁と冷蔵庫も収納できるパントリーが生活感を隠して、スッキリ見せてくれます
▼来場時間を選んでご予約ください▼
ここがPOINT!

ハウスガードシステム
ハウスガードシステムは、腐らない「緑の柱」で新築時の耐震性能を維持し、柱自身の防蟻効果から、住んでからもメンテナンスフリーの家を実現します。もちろん薬剤は無害の成分のため、お子様にも安心して頂ける建材です。
設置家具プレゼント
設置済みの大型家具はすべてそのままプレゼント!そのままお引越しできてとってもスムーズに新生活をスタートできるとってもお得な物件です。(※インテリア小物についてはプレゼント対象外です。)


すべてコミコミ価格!
土地・建物・外構・照明・エアコンすべてコミコミの価格設定。
※エアコンはリビングのみ
※税込価格
こんな方におすすめ!
- 結婚、出産を機にマイホームをご検討中の方
- 注文住宅か建売住宅かで迷われている方
- 注文中住宅を検討しているが予算でお悩みの方
- 共働きでマイホームを検討する時間がない方
- コスパは重視したいが住宅性能にはこだわりたい方
- 毎月の家賃支払いをもったいないと感じている方
- コスパ・タイパにこだわりたい方
- すぐにお引越しをしたい方
現在マイホームをご検討中の方も、今後ご検討予定の方も、是非ご家族みなさんでお気軽にご来場ください!
▼来場時間を選んでご予約ください▼

「ハウスガードシステム」とは
ハウスガードシステムは、腐らない「緑の柱」で新築時の耐震性能を維持し、柱自身の防蟻効果から、住んでからもメンテナンスフリーの家を実現します。もちろん薬剤は無害の成分のため、お子様にも安心して頂ける建材です。地震などの被害が心配される昨今、注目されている工法です。
駅前工務店について
駅前工務店は久留米市東櫛原町に本社を構える工務店です。創業当時より、腐らない緑の柱のハウスガードシステムを採用した住宅建築を手掛けております。注文住宅・建売住宅・リフォーム・アパート建築など、お困りの際はぜひご相談下さい。

チラシはこちら

















