

【期間限定】大決算キャンペーン!
駅前工務店より、年度末の大決算キャンペーンのご案内です!2月契約・3月末までに決済可能な方に限り、大幅値引きでご案内いたします!このチャンスをお見逃しなく♪
※全棟、ハウスガードシステム採用のオール電化住宅、設置済のリビングエアコン・家具もプレゼント対象となります。
※キャンペーン期間中は来場予約と各種SNSフォローで5,000円、事前審査申込でプラス10,000円、計15,000円分のAmazonギフト券プレゼント!
エネルギー消費性能
国が定める省エネ基準は☆1つです。削減率が10%向上する毎に☆が1つ増加します。☆の数が多いほど高い省エネ性能を有します。
断熱性能
国が定める省エネ基準は『4』です。断熱性能が向上する毎に段階があがります。数値が大きいほど高い断熱性能を有します。断熱の良さ(UA値)と日射の取得・遮蔽(ηAC値)を地域の区分毎に定められた基準値をもとに評価します。



外観はブラック×木調でかっこよくモダンな雰囲気。リビングの上はアクセントに黒い天井でモダンな印象です。内部の物干しコーナー&外部のデッキ付き物干場がある特徴的な間取り!布団などたっぷり干しても外から見えにくい場所にあるのがポイントです♪プライベートルームと水回りとリビングは分かれており落ち着いて過ごせるので人気の間取りです。キッチンはリビングから少し隠れる位置にあり、片付けが苦手な方でも安心!畳コーナーはダイニングに近く、ほっと一息つける空間です♡
- 物件名
-
佐賀市南佐賀3丁目第2-2号棟
- 分譲価格
-
3,680万円(税込)
- 月々支払い
-
73,727円
- 間取り
-
3LDK+畳コーナー
- 土地面積
-
254.67㎡(77.03坪)
- 建物面積
-
90.26㎡(27.30坪)
- 所在地
-
佐賀県佐賀市南佐賀3丁目169番30、169番2
- 交通
-
佐賀市営バス「南佐賀」300m(徒歩4分)
- 小学校区
-
佐賀市立北川副小学校 1,000m(徒歩15分)
- 中学校区
-
佐賀市立城南中学校 450m(徒歩6分)
Gallery
ギャラリー














- 販売区画数
-
1区画
- 総区画数
-
2区画
- 都市計画/用途地域
-
市街化区域/第一種住居地域
- 建ぺい率
-
60%
- 容積率
-
160%
- 構造・工法
-
木造・軸組工法
- 地目
-
宅地
- 私道負担・道路
-
南側/4m(私道)
- 土地の権利形態
-
所有権
- その他制限事項
-
建築基準法第22条指定区域・景観法
- 建物の権利形態
-
所有権
- 取引形態
-
売主
- 建物の建築年月日
-
2025年12月下旬
- 引き渡し時期
-
相談
- 条件・設備
-
オール電化・エアコン・上下水道・給湯・追炊機能・浴室乾燥機・オートバス・バス1坪以上・ハンギングバー・温水洗浄便座・洗髪洗面化粧台・システムキッチン・IHクッキングヒーター・食器洗浄乾燥機・浄水器・パントリー・全居室収納・電子キー・ウッドデッキ・宅配ボックス・駐車場3台可・太陽光発電システム(10.56kw)
- 備考
-
専任:株式会社駅前不動産 売買佐賀北店
設置家具プレゼント
- 情報更新日
-
2026年1月28日
- 建築確認番号
-
第R07SHC115394号
Floor Plan
間取り図・平面図

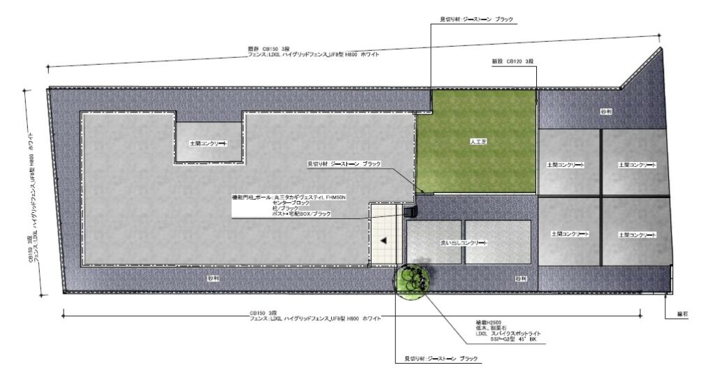
Plot Map
区画図
















