

黒を基調としたモダンでスタイリッシュな印象の外観!リビングの3帖スペースは収納やスタディスペースほか多目的に活用できます♪庭のタイルデッキは約2.5坪あるので、ガーデニングやBBQなど楽しめ、子供用プールも置けますし、物干場としても使えます。フラットレールは床に段差がないので掃除しやすく、見た目もすっきり!18帖のLDKは、キッチン回りが回遊動線になっており、忙しい日常を便利にしてくれます♪ また、洗面脱衣室のカウンター型洗面台は壁から壁に天板を渡すことで空間に一体感が生まれます。
- 物件名
-
佐賀市八戸溝1丁目第2-1号棟
- 分譲価格
-
4,180万円(税込)
- 月々支払い
-
88,558円
- 間取り
-
3LDK+スタディスペース
- 土地面積
-
212.50㎡(64.28坪)
- 建物面積
-
88.60㎡(26.80坪)
- 所在地
-
佐賀県佐賀市八戸溝1丁目1212番14
- 交通
-
JR長崎本線「鍋島駅」1,187m(徒歩15分)
- 小学校区
-
佐賀市立開成小学校 1,540m(徒歩20分)
- 中学校区
-
佐賀市立鍋島中学校 2,777m(徒歩35分)
Gallery
ギャラリー














- 販売区画数
-
1区画
- 総区画数
-
3区画
- 都市計画/用途地域
-
市街化区域/第一種中高層住居専用地域
- 建ぺい率
-
70%
- 容積率
-
200%
- 構造・工法
-
木造・軸組工法
- 地目
-
宅地
- 私道負担・道路
-
北側/5.94m(公道)西側/8.02
m(公道)
- 土地の権利形態
-
所有権
- その他制限事項
-
建築基準法第22条指定区域・景観法
- 建物の権利形態
-
所有権
- 取引形態
-
売主
- 建物の建築年月日
-
2026年1月上旬
- 引き渡し時期
-
相談
- 条件・設備
-
オール電化・エアコン・上下水道・給湯・追炊機能・浴室乾燥機・オートバス・バス1坪以上・温水洗浄便座・洗髪洗面化粧台・システムキッチン・カウンターキッチン・IHクッキングヒーター・食器洗浄乾燥機・浄水器・パントリー・全居室収納・電子キー・宅配ボックス・駐車場3台可・太陽光発電システム(10.56kw)
- 備考
-
専任:株式会社ソロン
設置家具プレゼント!
別途、ネットテレビ(光回線)またはケーブルテレビの契約が必要
- 情報更新日
-
2026年1月28日
- 建築確認番号
-
第R07SHC116941号
Floor Plan
間取り図・平面図


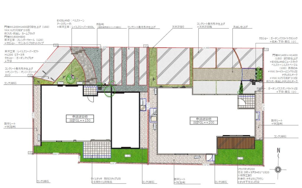
Plot Map
区画図
















