※完成予想図は実際とは異なる場合があります
ベージュのフラットウォールに木調が映える三角屋根のおしゃれな外観です。内装のテーマは「ジャパンディスタイル」!優しい木調の風合いに、小上がりの和室がゆったりとしたやすらぎの空間を演出♪インテリア格子でホールへ続く空間をふんわりと分け、壁際の間接照明は全体の優しい雰囲気をスタイリッシュに仕上げます。リビング隣の小上がりはくつろぎスペースにぴったり♡水回りは一直線で行ける間取りで家事ラクに!玄関近くのおかえりクローゼットはコートやカバンなどを収納できます。2F寝室のカウンターは書斎として使えます。子どもの遊び場やガーデニング、家庭菜園など屋外空間を有効活用できるバルコニー付き住宅です。
- 物件名
-
荒尾佐賀市若宮2号棟
- 分譲価格
-
3,880万円(税込)
- 月々支払い
-
100,418円
- 間取り
-
4LDK
- 土地面積
-
165.63㎡(50.10坪)
- 建物面積
-
101.85㎡(30.80坪)
- 所在地
-
佐賀県佐賀市若宮1丁目569-3
- 交通
-
JR長崎線「佐賀駅」1,465m(徒歩19分)
- 小学校区
-
佐賀市立若楠小学校 650m(徒歩9分)
- 中学校区
-
佐賀市立城北中学校 1,624m(徒歩21分)
Gallery
ギャラリー







- 販売区画数
-
1区画
- 総区画数
-
2区画
- 都市計画/用途地域
-
市街化区域/第一種中高層住居専用地域
- 建ぺい率
-
60%
- 容積率
-
160%
- 構造・工法
-
木造・軸組工法
- 地目
-
宅地
- 私道負担・道路
-
南側/4.0m(公道)
- 土地の権利形態
-
所有権
- その他制限事項
-
建築基準法第22条指定区域、景観法・都市再生特別措置法
- 建物の権利形態
-
所有権
- 取引形態
-
売主
- 建物の建築年月日
-
2026年3月中旬
- 引き渡し時期
-
相談
- 条件・設備
-
オール電化・上下水道・給湯・追炊機能・浴室乾燥機・オートバス・バス1坪以上・温水洗浄便座2台・洗髪洗面化粧台・システムキッチン・カウンターキッチン・IHクッキングヒーター・食器洗浄乾燥機・浄水器・エアコン(リビング)・全居室収納・ウォークインクローゼット、駐車場3台可・宅配ボックス・電子キー、ウッドデッキ・室内用物干(ハンギングバー)、2Fバルコニー
- 備考
-
専任業者:株式会社駅前不動産売買佐賀北店
設置家具プレゼント!
- 情報更新日
-
2025年11月18日
- 建築確認番号
-
第25WHEC確建福01988号
Floor Plan
間取り図・平面図


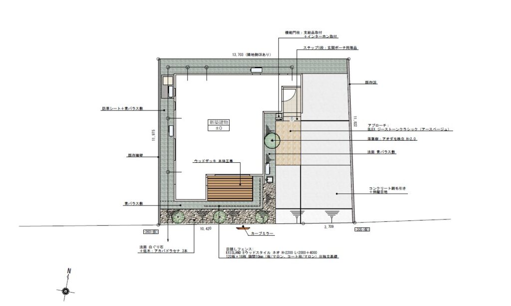
Plot Map
区画図
















