※完成予想図は実際とは異なる場合があります


【期間限定】大決算キャンペーン!
駅前工務店より、年度末の大決算キャンペーンのご案内です!2月契約・3月末までに決済可能な方に限り、大幅値引きでご案内いたします!このチャンスをお見逃しなく♪
※全棟、ハウスガードシステム採用のオール電化住宅、設置済のリビングエアコン・家具もプレゼント対象となります。
※キャンペーン期間中は来場予約と各種SNSフォローで5,000円、事前審査申込でプラス10,000円、計15,000円分のAmazonギフト券プレゼント!


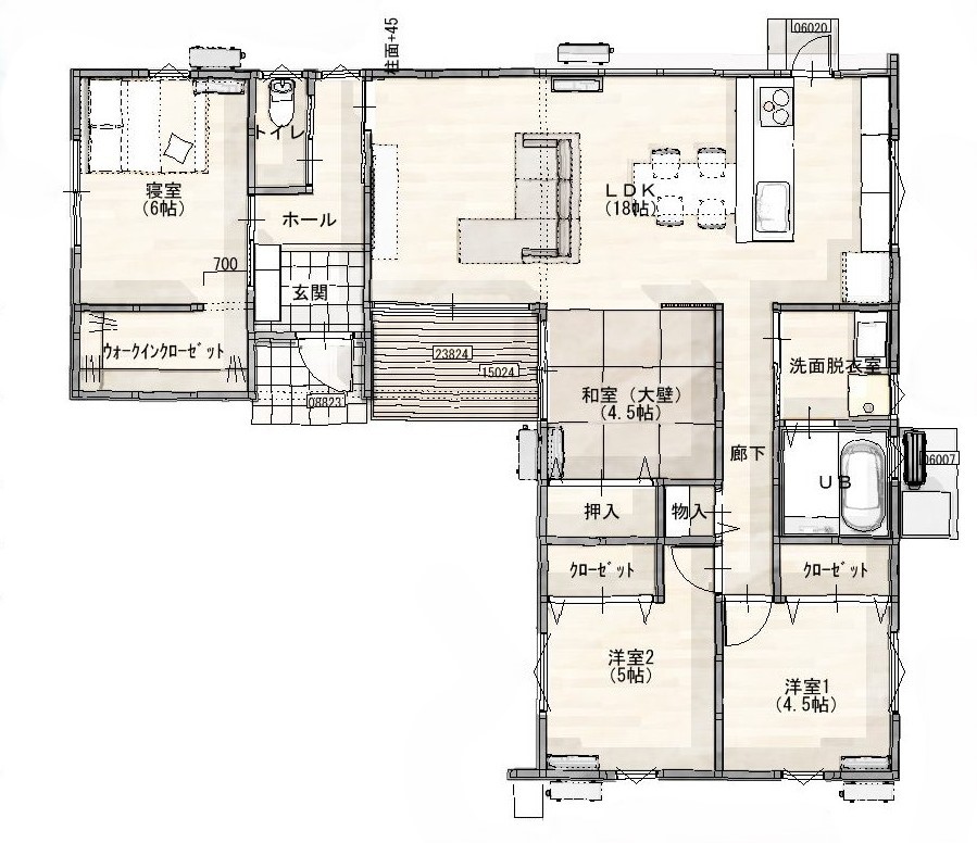
ベージュ×ホワイト×木目の配色が美しい外観デザイン!リビングの折り上げ天井が明るく開放感のある空間を維持しながら、インテリア格子でゆるやかに空間を仕切る畳コーナーは落ち着いた雰囲気を取り入れることができます。リビングに隣接している畳コーナーはキッズスペースや客間として使え、ご家族でゆったりくつろげる憩いのスペースにもなります♪寝室と洋室が離れた間取りは家族や同居人との生活のリズムの違いがあっても、お互いに気兼ねなく過ごせるメリットが!
- 物件名
-
小城市小城町4号棟
- 分譲価格
-
3,680万円(税込)
- 月々支払い
-
75,846円
- 間取り
-
3LDK+畳コーナー
- 土地面積
-
231.83㎡(70.12坪)
- 建物面積
-
90.67㎡(27.42坪)
- 所在地
-
佐賀県小城市小城町字北小路236番6
- 交通
-
JR唐津線「小城駅」1,125m(徒歩15分)
- 小学校区
-
小城市立桜岡小学校 657m(徒歩9分)
- 中学校区
-
小城市立小城中学校 590m(徒歩8分)
Gallery
ギャラリー








- 販売区画数
-
1区画
- 総区画数
-
2区画
- 都市計画/用途地域
-
非線引区域/指定なし
- 建ぺい率
-
70%
- 容積率
-
200%
- 構造・工法
-
木造・軸組工法
- 地目
-
宅地
- 私道負担・道路
-
西側/6.0m(公道)
- 土地の権利形態
-
所有権
- その他制限事項
-
建築基準法22条指定区域
文化財保護法
- 建物の権利形態
-
所有権
- 取引形態
-
売主
- 建物の建築年月日
-
2026年3月中旬
- 引き渡し時期
-
相談
- 条件・設備
-
オール電化・上下水道・給湯・追炊機能・浴室乾燥機・オートバス・バス1坪以上・温水洗浄便座・洗髪洗面化粧台・システムキッチン・カウンターキッチン・IHクッキングヒーター・食器洗浄乾燥機・浄水器・エアコン(リビング)・全居室収納・ウォークインクローゼット、駐車場3台可・宅配ボックス・電子キー・ウッドデッキ・室内用物干(ホスクリーン)・太陽光発電システム(10.56kw)
- 備考
-
専任業者:小栁不動産
設置家具プレゼント!
別途、ネットテレビ(光回線)またはケーブルテレビの契約が必要
- 情報更新日
-
2026年1月28日
- 建築確認番号
-
第R07SHC122834号
Floor Plan
間取り図・平面図

Plot Map
区画図
















