※完成予想図は実際とは異なる場合があります


【期間限定】大決算キャンペーン!
駅前工務店より、年度末の大決算キャンペーンのご案内です!2月契約・3月末までに決済可能な方に限り、大幅値引きでご案内いたします!このチャンスをお見逃しなく♪
※全棟、ハウスガードシステム採用のオール電化住宅、設置済のリビングエアコン・家具もプレゼント対象となります。
※キャンペーン期間中は来場予約と各種SNSフォローで5,000円、事前審査申込でプラス10,000円、計15,000円分のAmazonギフト券プレゼント!


- 物件名
-
佐賀市末広2丁目
- 分譲価格
-
3,880万円(税込)
- 月々支払い
-
80,083円
- 間取り
-
3LDK
- 土地面積
-
249.21㎡(75.38坪)
- 建物面積
-
86.12㎡(26.05坪)
- 所在地
-
佐賀県佐賀市末広2丁目410番
- 交通
-
JR長崎本線「鍋島駅」2,882m(徒歩37分)
- 小学校区
-
佐賀市立西与賀小学校 1,852m(徒歩24分)
- 中学校区
-
佐賀市立城西中学校 1,450m(徒歩19分)
Gallery
ギャラリー















- 販売区画数
-
1区画
- 総区画数
-
1区画
- 都市計画/用途地域
-
市街化区域/準住居地域・第一種低層住居専用地域
- 建ぺい率
-
60%・50%
- 容積率
-
161.20%・80%
- 構造・工法
-
木造・軸組工法
- 地目
-
宅地
- 私道負担・道路
-
南側/4.03m(公道)
- 土地の権利形態
-
所有権
- その他制限事項
-
建築基準法22条指定区域
建築物の高さ限度10m・壁面後退1.0m
景観法
- 建物の権利形態
-
所有権
- 取引形態
-
売主
- 建物の建築年月日
-
2026年4月上旬
- 引き渡し時期
-
相談
- 条件・設備
-
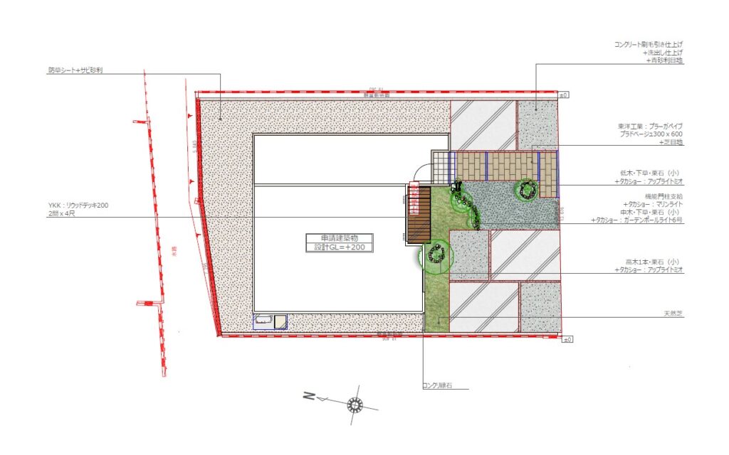
オール電化・上下水道・給湯・追炊機能・浴室乾燥機・オートバス・バス1坪以上・温水洗浄便座・洗髪洗面化粧台・システムキッチン・カウンターキッチン・IHクッキングヒーター・食器洗浄乾燥機・浄水器・エアコン(リビング)・全居室収納・ウォークインクローゼット・駐車場3台可・宅配ボックス・電子キー・パントリー・物入・ウッドデッキ・室内用物干(ホスクリーン)・太陽光発電システム(10.56kw)
- 備考
-
専任業者:株式会社ヤマト開発不動産
設置家具プレゼント!
- 情報更新日
-
2026年2月2日
- 建築確認番号
-
第R07SHC125131号
Floor Plan
間取り図・平面図

















