※完成予想図は実際とは異なる場合があります


- 物件名
-
佐賀市高木瀬東4丁目
- 分譲価格
-
3,880万円(税込)
- 月々支払い
-
82,202円
- 間取り
-
3LDK+畳コーナー
- 土地面積
-
229.76㎡(69.50坪)
- 建物面積
-
91.09㎡(27.55坪)
- 所在地
-
佐賀県佐賀市高木瀬東4丁目849番16
- 交通
-
JR長崎本線「佐賀駅」2,911m(徒歩37分)
- 小学校区
-
佐賀市立高木瀬小学校 874m(徒歩11分)
- 中学校区
-
佐賀市立城北中学校 1,680m(徒歩22分)
Gallery
ギャラリー









- 販売区画数
-
1区画
- 総区画数
-
1区画
- 都市計画/用途地域
-
市街化区域/第一種低層住居専用地域
- 建ぺい率
-
50%
- 容積率
-
80%
- 構造・工法
-
木造・軸組工法
- 地目
-
宅地
- 私道負担・道路
-
東側/4.0m(公道)
- 土地の権利形態
-
所有権
- その他制限事項
-
建築基準法22条指定区域
建築物の高さ限度10m・壁面後退1.0m
景観法・都市再生特別措置法・地域再生法・水防法・建設工事に係る資材の再資源化等に関する法律
- 建物の権利形態
-
所有権
- 取引形態
-
売主
- 建物の建築年月日
-
2026年3月下旬
- 引き渡し時期
-
相談
- 条件・設備
-
オール電化・上下水道・給湯・追炊機能・浴室乾燥機・オートバス・バス1坪以上・温水洗浄便座・洗髪洗面化粧台・システムキッチン・カウンターキッチン・IHクッキングヒーター・食器洗浄乾燥機・浄水器・エアコン(リビング)・全居室収納・駐車場3台可・宅配ボックス・電子キー・パントリー・物入・ウッドデッキ・室内用物干(ハンギングバー)・プロジェクター照明・太陽光発電システム(10.12kw)
- 備考
-
専任業者:株式会社ソロン
設置家具プレゼント!
- 情報更新日
-
2026年2月2日
- 建築確認番号
-
第R07SHC125134号
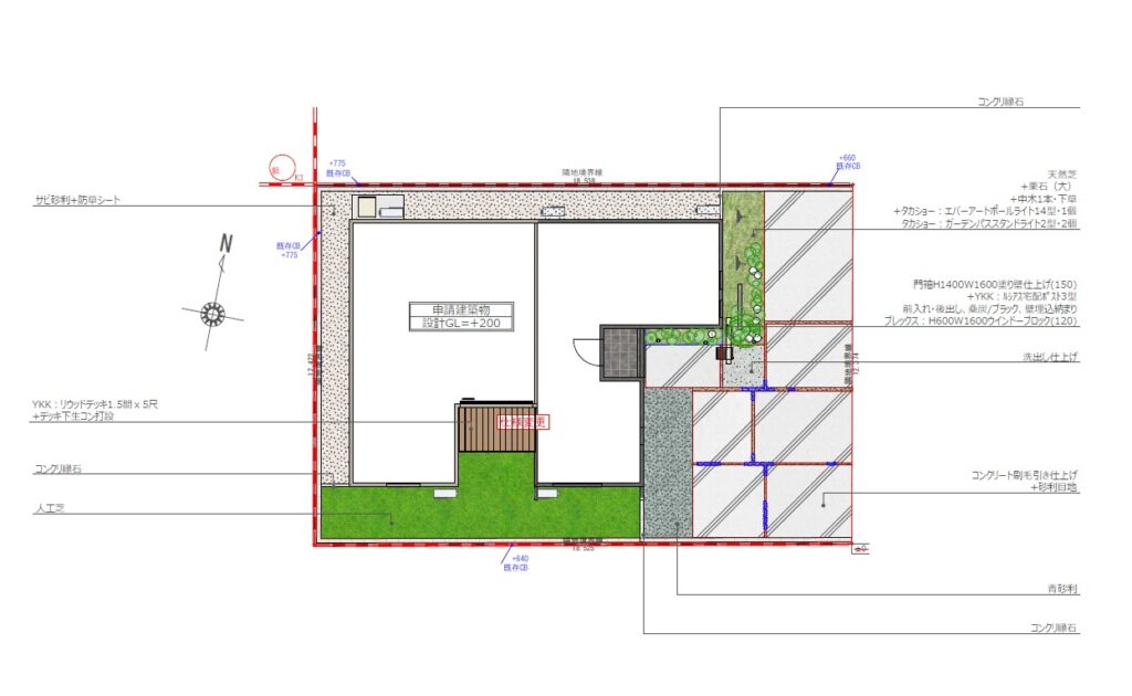
Floor Plan
間取り図・平面図

















