※完成予想図は実際とは異なる場合があります
- 物件名
-
佐賀市本庄町末次
- 分譲価格
-
3,480万円(税込)
- 月々支払い
-
75,431円
- 間取り
-
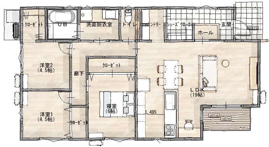
3LDK+スタディスペース
- 土地面積
-
446.83㎡(135.16坪)
- 建物面積
-
87.77㎡(26.55坪)
- 所在地
-
佐賀県佐賀市本庄町大字末次字五本杉120番13、120番14
- 交通
-
市営バス「八田宮前」253m(徒歩4分)
- 小学校区
-
佐賀市立本庄小学校 1,613m(徒歩21分)
- 中学校区
-
佐賀市立城西中学校 2,453m(徒歩31分)
Gallery
ギャラリー










- 販売区画数
-
1区画
- 総区画数
-
1区画
- 都市計画/用途地域
-
市街化調整区域/指定なし
- 建ぺい率
-
60%
- 容積率
-
100%
- 構造・工法
-
木造・軸組工法
- 地目
-
宅地
- 私道負担・道路
-
北側/4.0m(公道)
- 土地の権利形態
-
所有権
- その他制限事項
-
最高の高さ10m以下・景観法・都市再生特別措置法
- 建物の権利形態
-
所有権
- 取引形態
-
売主
- 建物の建築年月日
-
2026年8月下旬
- 引き渡し時期
-
相談
- 条件・設備
-
制震ダンパー(MAMORY)・オール電化・上下水道・給湯・追炊機能・浴室乾燥機・オートバス・バス1坪以上・温水洗浄便座・洗髪洗面化粧台・システムキッチン・カウンターキッチン・IHクッキングヒーター・食器洗浄乾燥機・浄水器・エアコン(リビング)・全居室収納・駐車場5台可・宅配ボックス・電子キー・ウッドデッキ・パントリー・シューズクローク・室内用物干
- 備考
-
専任業者:株式会社駅前不動産 佐賀北店
設置家具プレゼント!
- 情報更新日
-
2026年5月12日
- 建築確認番号
-
第R08SHC106025号
Floor Plan
間取り図・平面図
















