※完成予想図は実際とは異なる場合があります
外観は片流れ屋根でスタイリッシュな印象です。ブラックをアクセントにしたホテルライクでおしゃれな内観♪キッチン周りは回遊動線で家事がスムーズ!リビング横の続き間の洋室は多目的に使えて便利です。引き戸が天井まであるハイドアだから空間につながりが生まれます。洗面と脱衣室が別なので、忙しい朝にも家族それぞれのペースで身支度ができるメリットが!2Fは各部屋にたっぷりの収納が付いており、寝室に設置するカウンターは就寝前後にスマホなどを置いたり、作業スペースとして活用できます!
- 物件名
-
荒尾佐賀市若宮1号棟
- 分譲価格
-
3,880万円(税込)
- 月々支払い
-
100,418円
- 間取り
-
4LDK
- 土地面積
-
206.98㎡(62.61坪)
- 建物面積
-
106.82㎡(32.31坪)
- 所在地
-
佐賀県佐賀市若宮1丁目569-1、570-1の一部
- 交通
-
JR長崎線「佐賀駅」1,465m(徒歩19分)
- 小学校区
-
佐賀市立若楠小学校 650m(徒歩9分)
- 中学校区
-
佐賀市立城北中学校 1,624m(徒歩21分)
Gallery
ギャラリー







- 販売区画数
-
1区画
- 総区画数
-
2区画
- 都市計画/用途地域
-
市街化区域/第一種中高層住居専用地域
- 建ぺい率
-
60%
- 容積率
-
160%
- 構造・工法
-
木造・軸組工法
- 地目
-
宅地
- 私道負担・道路
-
東側/4.0m(公道)
- 土地の権利形態
-
所有権
- その他制限事項
-
建築基準法第22条指定区域、景観法・都市再生特別措置法
- 建物の権利形態
-
所有権
- 取引形態
-
売主
- 建物の建築年月日
-
2026年3月中旬
- 引き渡し時期
-
相談
- 条件・設備
-
オール電化・上下水道・給湯・追炊機能・浴室乾燥機・オートバス・バス1坪以上・温水洗浄便座2台・洗髪洗面化粧台・システムキッチン・カウンターキッチン・IHクッキングヒーター・食器洗浄乾燥機・浄水器・エアコン(リビング)・全居室収納・ウォークインクローゼット、駐車場3台可・宅配ボックス・電子キー・テラス・室内用物干(ハンギングバー)
- 備考
-
専任業者:株式会社駅前不動産売買佐賀北店
設置家具プレゼント!
- 情報更新日
-
2025年11月21日
- 建築確認番号
-
第25WHEC確建福01932号
Floor Plan
間取り図・平面図


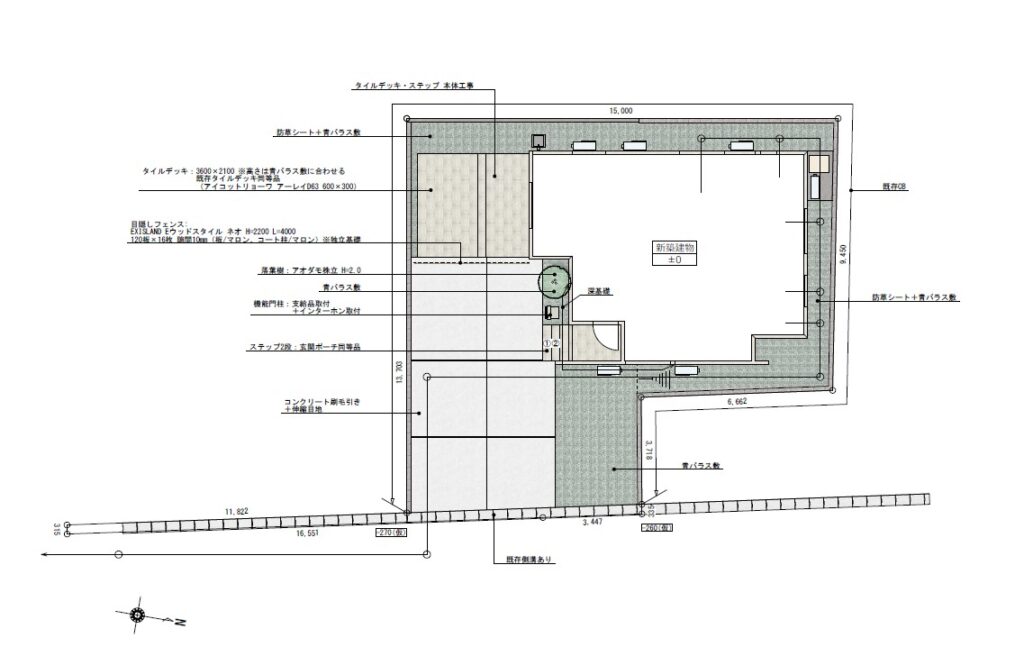
Plot Map
区画図
















