※完成予想図は実際とは異なる場合があります
- 物件名
-
小郡市大保第2-1号棟
- 分譲価格
-
3,880万円(税込)
- 月々支払い
-
95,832円
- 間取り
-
3LDK+畳コーナー
- 土地面積
-
150.35㎡(45.48坪)
- 建物面積
-
107.65㎡(32.56坪)
- 所在地
-
福岡県小郡市大保1538-12
- 交通
-
西鉄天神大牟田線「大保駅」800m(徒歩11分)
- 小学校区
-
小郡市立東野小学校 780m(徒歩10分)
- 中学校区
-
小郡市立大原中学校 945m(徒歩12分)
Gallery
ギャラリー

アクセントの洗練されたモダンな外観!

防犯性と使いやすさを兼ね備えています!

おしゃれでリラックスできる空間に!

フロアで落ち着いた雰囲気です♪

見た目もスッキリ!お手入れのしやすさとデザイン性を両立。


子どもの遊び場や昼寝、家事、客間に最適!

チェストを置けばタオルや衣類もしっかり収納でき動線もすっきり!




- 販売区画数
-
1区画
- 総区画数
-
3区画
- 都市計画/用途地域
-
市街化区域/第一種中高層住居専用地域
- 建ぺい率
-
60%
- 容積率
-
192.60%
- 構造・工法
-
木造・軸組工法
- 地目
-
宅地
- 私道負担・道路
-
南東側/4.815m(公道)
- 土地の権利形態
-
所有権
- その他制限事項
-
建築基準法22条指定区域・宅地造成等工事規制区域
景観法・航空法・都市再生特別措置法・重要土地等調査法
- 建物の権利形態
-
所有権
- 取引形態
-
売主
- 建物の建築年月日
-
2026年4月下旬
- 引き渡し時期
-
相談
- 条件・設備
-
オール電化・上下水道・給湯・追炊機能・浴室乾燥機・オートバス・バス1坪以上・温水洗浄便座2台・洗髪洗面化粧台・システムキッチン・カウンターキッチン・IHクッキングヒーター・食器洗浄乾燥機・浄水器・エアコン(リビング)・全居室収納・ウォークインクローゼット・ファミリークローゼット・駐車場2台可・宅配ボックス・電子キー・パントリー・物入・室内用物干・電動シャッター
- 備考
-
設置家具プレゼント!
- 情報更新日
-
2026年2月24日
- 建築確認番号
-
第25WHEC確建福02288号
Floor Plan
間取り図・平面図


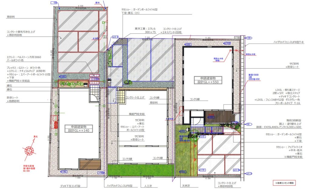
Plot Map
区画図
















