※完成予想図は実際とは異なる場合があります
外観はモダンな形ながら、ホワイト×木目調で優しい雰囲気。勾配天井のあるリビング横にはスキップフロアが!1Fはお子様のおもちゃ部屋、2Fは書斎など、多様な使い方で楽しい空間です。内装は北欧ナチュラルをテーマに、アッシュクリアの明るい床に、グリーンのアクセントクロスがポイントです♡キッチン~洗面まで一直線なので家事ラク動線になっています。中庭プランで外のプライベート空間を確保!玄関からウォークスルーできる収納を通って帰宅時の動線がラクチンに♪
【0円で始める太陽光発電】
Point1 既に建売住宅に設置済ですので、無料で太陽光を導入できます
高額な太陽光設備をお得に導入し、低コストで高スペックの快適住宅に
Point2 月額や従量料金など無料で自家消費を使い放題
サービス期間中、ランニング費用はかからないので毎月の電気代をしっかり削減
Point3 サービス期間終了後は全ての太陽光を自由に
サービス終了後は、自家消費も売電も全てお客様のものに
- 物件名
-
佐賀市南佐賀3丁目第2-1号棟
- 分譲価格
-
3,680万円(税込)
- 月々支払い
-
95,242円
- 間取り
-
3LDK+スタディスペース
- 土地面積
-
258.50㎡(78.19坪)
- 建物面積
-
97.49㎡(29.49坪)
- 所在地
-
佐賀県佐賀市南佐賀3丁目169番30、169番2
- 交通
-
佐賀市営バス「南佐賀」300m(徒歩4分)
- 小学校区
-
佐賀市立北川副小学校 1,000m(徒歩15分)
- 中学校区
-
佐賀市立城南中学校 450m(徒歩6分)
Gallery
ギャラリー












- 販売区画数
-
1区画
- 総区画数
-
2区画
- 都市計画/用途地域
-
市街化区域/第一種住居地域
- 建ぺい率
-
60%
- 容積率
-
160%
- 構造・工法
-
木造・軸組工法
- 地目
-
宅地
- 私道負担・道路
-
南側/4m(私道)
- 土地の権利形態
-
所有権
- その他制限事項
-
建築基準法第22条指定区域・景観法
- 建物の権利形態
-
所有権
- 取引形態
-
売主
- 建物の建築年月日
-
2025年12月上旬
- 引き渡し時期
-
相談
- 条件・設備
-
オール電化・エアコン・上下水道・給湯・追炊機能・浴室乾燥機・オートバス・バス1坪以上・温水洗浄便座・洗髪洗面化粧台・システムキッチン・IHクッキングヒーター・食器洗浄乾燥機・浄水器・パントリー・全居室収納・ウォークインクローゼット・玄関収納・電子キー・宅配ボックス・駐車場3台可・太陽光発電システム
- 備考
-
専任:株式会社駅前不動産 売買佐賀北店
設置家具プレゼント
- 情報更新日
-
2025年9月19日
- 建築確認番号
-
第R07SHC115393号
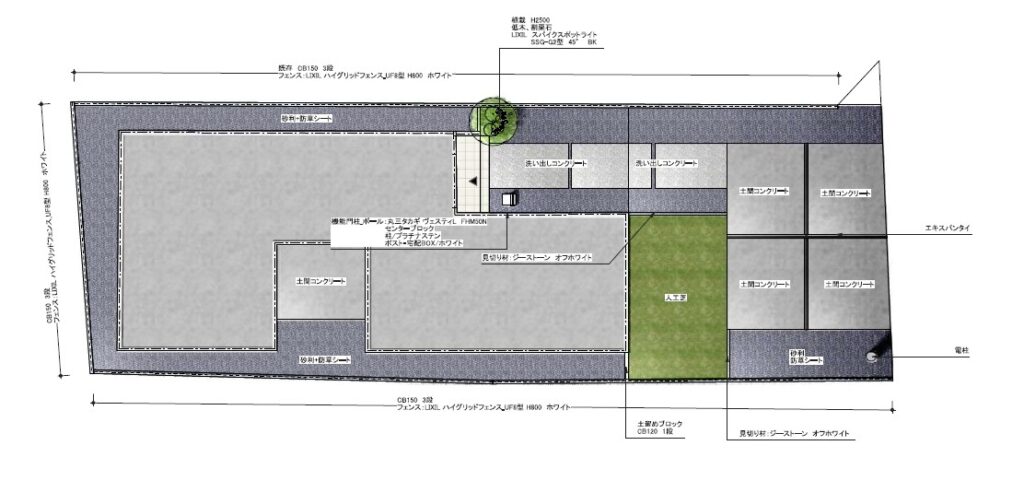
Floor Plan
間取り図・平面図
